Krbová kamna Baltik 4
Výrobce: ABX
Kód: baltik4
DOPRAVA zdarma
Tento produkt doručíme v rámci ceny.
Varianty produktu
Krbová kamna Baltik 4
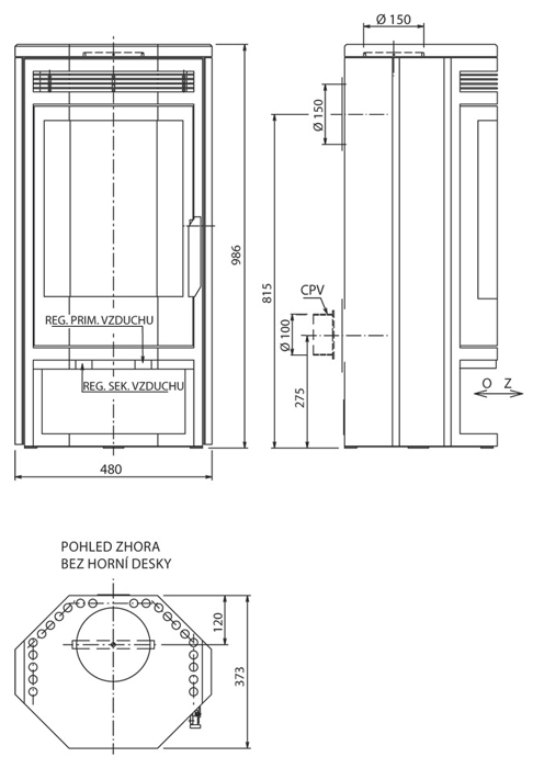
Kamna vyrobená nejmodernější technologií, pomocí jäklového rámu, dávají kamnům jedinečný vzhled a pevnost.Splňují nejpřísnější německé a rakouské normy.Jsou určeny i pro nízkoenergetické domy s možností dopravení spalovacího vzduchu z vně budovy.Možnost využití horního a zadního vývodu.
Krbová kamna na dřevo ABX Baltik 4 šedá
Parametry
| druh paliva: | dřevo |
|---|---|
| hloubka: | 373 mm |
| hmotnost (včetně obalu): | 125 kg |
| hmotnostní tok spalin: | 5 g/s |
| jmenovitý tepelný výkon: | 5 kW |
| maximální délka polen: | 280 mm |
| minimální tah komínu: | 10 Pa |
| připojení kouřovodu: | horní / zadní |
| rozměry topeniště [š x h]: | 326 x 275 mm |
| spotřeba paliva: | 1,5 kg/hod. |
| teplota spalin: | 216 °C |
| vnější průměr kouřovodu: | 150 mm |
| vytápěný prostor: | 100 - 130 m3 |
| výška: | 986 mm |
| šířka: | 480 mm |
Dotazy a komentáře
Přílohy
