KRBOVÁ VLOŽKA BEF THERM 6 CL
DOPRAVA zdarma
Tento produkt doručíme v rámci ceny.
KRBOVÁ VLOŽKA BEF THERM 6 CL
Inovativní oplach skla a bezchybně čisté sklo. Vzduch je veden zády přes nahřívací komory. Ty zajišťují vyšší teplotu přivedeného vzduchu pro oplach skla a pomalejší jeho proudění.
Optimalizovaný tvar carconového topeniště vyvinutý pomocí aerodynamického modelu.
Nejmasivnější akumulační materiál na trhu carcon, který je až o 100% masivnější než u starších typů. Disponuje ale i mnohem větší akumulační schopností, vydrží nahřátý až 12hodin.
Strukturovaný aktivní povrch carconů zachycuje partikulární částice s následným dopalováním.
Rohové prosklení s jednodílným ohýbaným sklem a kličkou potaženou pravou kůží.
Externí přívod vzduchu umožňuje připojení elektronické regulace hoření.
Jednoduché ovládání jedním regulačním prvkem.
Možno doobjednat čtyřstranný zazdívací rámeček s lemem 90st.
Jmenovitý výkon celkový: 6 kW
Účinnost: 82%
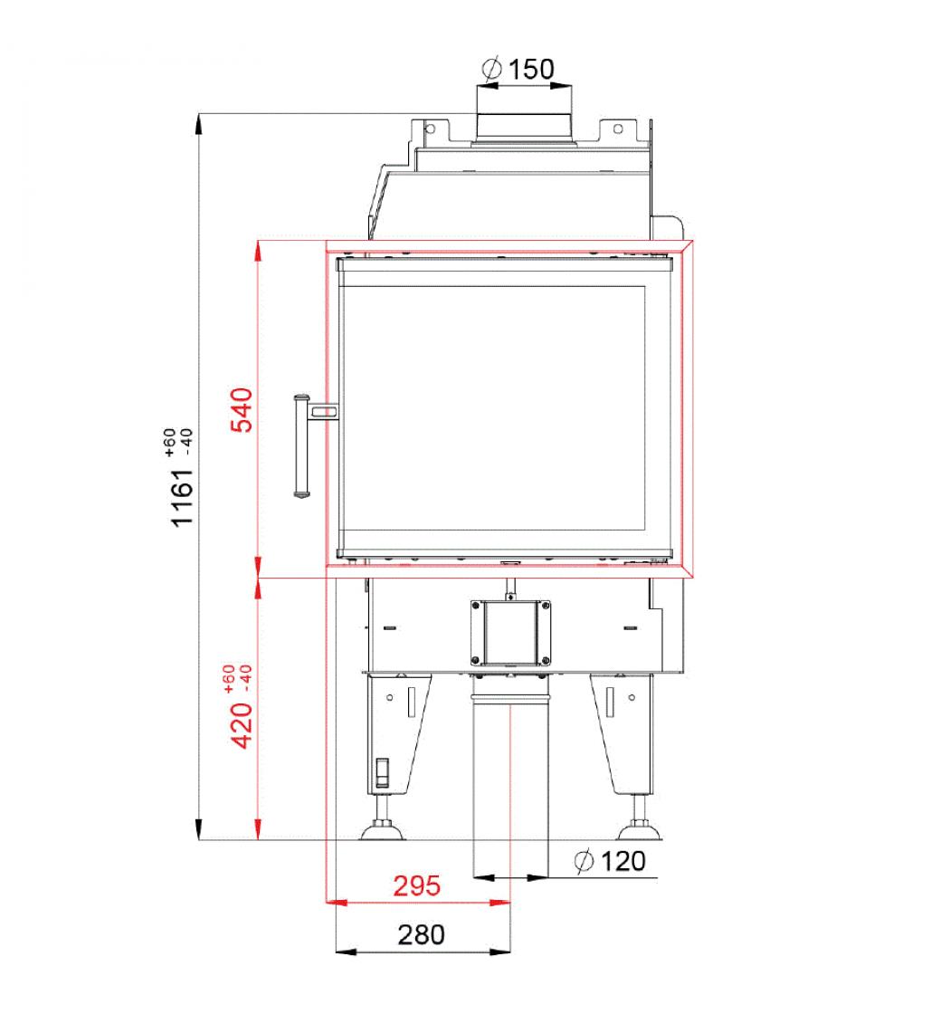
Průměr kouřovodu: 150 mm
Rozměr: 557x357x510 mm
Vlastní rozměr topeniště: 395x295 mm
Teplota spalin: 262 °C
Minimální sálavá plocha: 7 m2
Parametry
| Jmenovitý výkon: | 6 kW |
|---|---|
| Průměr kouřovodu: | 150 mm |
| Účinnost: | 82 % |
| Prosklení: | rohové levé |
| Externí přívod vzduchu: | ano |
| Ø trubky externího přívodu vzduchu: | 120 mm |
