KRBOVÁ VLOŽKA BEF TWIN 10 II
DOPRAVA zdarma
Tento produkt doručíme v rámci ceny.
KRBOVÁ VLOŽKA BEF TWIN 10 II
Propracovaná řada průhledových krbových vložek BeF Twin II splňují přísné technické, ekologické normy a vyznačují se vysokou účinností. Průhledové prosklení krbové vložky je skvělým řešením, které propojuje hned dvě místnosti. Tyto krby jsou rovněž uzpůsobené na zadní přikládání. V jedné místnosti tak přikládáte a vynášíte popel, ve druhé jen sledujete živý oheň. Vyjímečné průhledové krbové vložky přináší teplo i radost z živého ohně, proto jsou jedním z nejoblíbenějších řešení pro Vás dům.
- Průhledová krbová vložka s dvířky otevíranými do strany.
- Optimalizovaný tvar carconového topeniště vyvinutý pomocí aerodynamického modelu.
- Nejmasivnější akumulační materiál na trhu carcon, který je až o 100% masivnější než u starších typů. Disponuje ale i mnohem větší akumulační schopností.
- Strukturovaný aktivní povrch carconů zachycuje partikulární částice s následným dopalováním.
- Oblíbený formát dveří s černě podbarveným sklem a kličkou potaženou pravou kůží.
- Regulace hoření u obou stran.
- Externí přívod vzduchu umožňuje připojení elektronické regulace hoření.
- Možno doobjednat čtyřstranný zazdívací rámeček s lemem 90st.
Jmenovitý výkon celkový
14 kW
Účinnost
83%
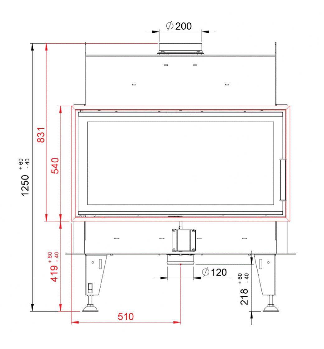
Průměr kouřovodu
200 mm
Rozměr
992x510x517 mm
Váha
226 kg
Vlastní rozměr topeniště
815x320 mm
Teplota spalin
242 °C
Délka polene
65 cm
Parametry
| Jmenovitý výkon: | 14 kW |
|---|---|
| Průměr kouřovodu: | 200 mm |
| Účinnost: | 83 % |
| Prosklení: | průhledové |
| Externí přívod vzduchu: | ano |
| Ø trubky externího přívodu vzduchu: | 120 mm |
Příslušenství
Ceny označené * jsou zvýhodněné a platí jen při nákupu jako příslušenství k tomuto zboží.
![]() |
CARCONOVÁ ZÁSLEPKA MALÁ | 745 Kč * |
Do košíku |
![]() |
KLIKA HIDE | 545 Kč * |
Do košíku |
![]() |
PŘÍPLATEK CARCONY ROVNÉ, BÍLÉ | 1 Kč | Do košíku |
![]() |
PŘÍPLATEK CARCONY ROVNÉ, ČERNÉ | 1 452 Kč | Do košíku |
![]() |
PŘÍPLATEK CARCONY ZAKULACENÉ, AKUMULAČNÍ, ČERNÉ | 1 452 Kč | Do košíku |
![]() |
NOHY DLOUHÉ KE KRBOVÝM VLOŽKÁM BEF | 1 725 Kč * |
Do košíku |
![]() |
NOHY KRÁTKÉ KE KRBOVÝM VLOŽKÁM BEF | 1 725 Kč * |
Do košíku |
| BEF AUTOMATICKÁ REGULACE HOŘENÍ | 17 999 Kč * |
Do košíku | |
![]() |
BEF KLIČKA BÍLÁ | 1 210 Kč * |
Do košíku |
![]() |
BEF KLIČKA ČERVENÁ | 1 210 Kč * |
Do košíku |









