Krbová vložka Uniflam 860 EVO, 260-181
Krbová vložka Uniflam 860 EVO, horní otevírání, 260-181
-5%
Doprava ZDARMA
Cena: 59 990 Kč s DPH
běžná cena: 63 133 Kč, sleva -5%
Termín dodání: na dotaz
Výrobce: Uniflam
Kód: 260-181
DOPRAVA zdarma
Tento produkt doručíme v rámci ceny.
Krbová vložka Uniflam 860 EVO, 260-181
Krbová vložka Uniflam 860 EVO výsuvné dveře ref. 260-181
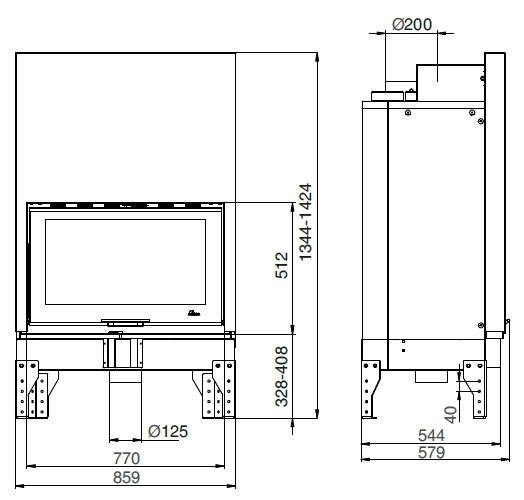
Parametry
| Externí přívod vzduchu: | průměr125 mm |
|---|---|
| Max.délka polen: | 55cm |
| Průměr kouřovod: | 200mm |
| Teplota spalin: | 280 °C |
| Vývod horkého vzduchu: | 6 x průměr125 mm |
| účinnost: | 82% |
| Jmenovitý výkon: | 14 kW |
| Hmotnost: | 280 kg |
| Prosklení: | rovné |
