Thorma ANDORRA exclusive černá
DOPRAVA zdarma
Tento produkt doručíme v rámci ceny.
Thorma ANDORRA exclusive černá
Atraktivní desing krbových kamen - sloupové provedení - Andorra exclusive - Thorma Filakovo
Krbová kamna na noze jsou otočném provedení - tedy otočná noha a hrdlo kouřovodu. Můžete je natáčet v interiéru podle potřeby směrování tepla, nebo naopak z estetického hlediska pro pohled na reálný oheň.

Trend dnešní doby - akumulační obklady:

Na krbová kamna Andorra si můžete objednat a nebo nechat u nás namontovat akumulační plášť.
Akumulační plášť se skládá ze 4 segmentů akumulačního žárobetonu. Je to perfektní výrobek který má optimalizované tepelné vodivosti pro různé teploty a současně velkou akumulační schopnost.
Jádro akumulace zůstává po několik hodin nahřáté na vysokou teplotu, a současně povrch vyzařuje teplo na příjemné teplotě kolem 60C,
Optimalizované topeniště má nejmodernější způsob hoření s přívodem horního vzduchu předehřátého na teplotu vyšší než 200C, tedy teplotu přiváděného vzduchu, která dokáže zapálit uvolněné uhlovodíky z paliva.
Kamna Andorra hoří na principu kanadských kamen - v topeništi se zplyňuje a vzduchem zhora se hořlavé plyny zapalují a tím plameny vyplní celý prostor za sklem.
Toto hoření je vysoce estetické a příjemné - má velmi uklidňující charakter pro pozorování a na druhou stranu působí velmi progresívně pro nabuzení aktivity osob ve vytápěném prostoru.
Samozřejmostí je:
- centrální přívod vzduchu pro spalování
- dvoubodové zavíráné
- celoplošný oplach skla
Thorma Krbová kamna ANDORRA exclusive černá
Model
ANDORRA - exclusive
Typové číslo
F9489107011
Jmenovitý výkon
7,5 kW
Rozsah výkonů
3,5 až 10,5 kW
Celkový vytápěný prostor
98 až 190 m3
Provedení jednoplášťové, dvouplášťové
dvouplášťové
Materiál druhého pláště
plech
Barva základní
černá
Barva pláště
černá
Druh povrchu
lak
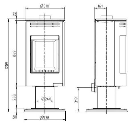
Rozměr - výška
1200 mm
Rozměr - šířka
540 mm
Rozměr - hloubka
540 mm
Průměr hrdla kouřovodu
150 mm
Umístění kouřovodu
horní
Výška hrdla kouřovodu nad podlahou
1200 mm
Provozní tah komína (Pa)
12 Pa
Typy doporučených paliv
dřevo, dřevěné brikety, hnědouhelné brikety
Spotřeba paliva - drevo
2,4 kg/hod
Spotřeba paliva - brikety
1,7 kg/hod
Délka polen
30 cm
Maximální obvod polen
30 cm
Spalování
dvoustupňové
Hoření
na roštu
Účinnost - pro dřevo
80,40 %
Účinnost - pro brikety
73,70 %
Materiál roštu
litina
Materiál vyzdívky
vermikulit
Regulace přívodu vzduchu
primární a sekundární vzduch ovládaný společně
Přívod vzduchu
z interiéru, z exteriéru hrdlo DN 100 mm
Velikost skla šířka
415 mm - obloukové sklo mm
Velikost skla výška
488 mm
Rozměry přikládacího otvoru - šířka
cca 300 mm
Rozměry přikládacího otvoru - výška
cca 350 mm
Přikládací dvířka oddělená od dvířek popelníku
ne
Bezpečná vzdálenost od hořlavých stavebních konstrukcí a nábytku na bocích
400 mm
Bezpečná vzdálenost od hořlavých stavebních konstrukcí a nábytku před dvířky
800 mm
Bezpečná vzdálenost od hořlavých stavebních konstrukcí a nábytku za spotřebičem
200 mm
Minimální přesah nehořlavé podložky pod kamna vpředu
500 mm
Minimální přesah nehořlavé podložky pod kamna na bocích
300 mm
Hmotnost topidla bez příslušenství
95 kg
Záruční doba
24 měsíců
Dodávané příslušenství
rukavice
Parametry
| Celkový vytápěný prostor: | 98 až 190 m3 |
|---|---|
| Délka polen: | 30 cm |
| Provedení jednoplášťové, dvouplášťové: | dvouplášťové |
| Provozní tah komína (Pa): | 12 Pa |
| Spotřeba paliva - drevo: | 2,4 kg/hod |
| Výška hrdla kouřovodu nad podlahou: | 1200 mm |
| Jmenovitý výkon: | 7.5 kW |
| Rozsah výkonu: | 3,5 až 10,5 kW |
| Průměr kouřovodu: | 150 mm |
| Hmotnost: | 94 kg |
| Účinnost: | 80,4 % |
| Externí přívod vzduchu: | ano |
| Ø trubky externího přívodu vzduchu: | 100 mm |
| Napojení kouřovodu: | horní |
| Palivo: | dřevo, dřevěné brikety |
| Barva: | černá |
